
Explanation of Competition Rules
Submission Content Description
Part 1: Basic information and project design introduction
Representative and project participant names:
Design company name:
Project title:
Design year and month:
Project location (city/county):
Design area:
Single-level / multi-level (select one):
Photography (optional):
Design or introduction video link (YouTube recommended, optional):
Design concept description (limit 150 words):
Part 2: Design and construction drawings (required)
※ 1 main visual photo/layout image (for the voting page)+14 to 20 pages, including cover and drawings (A3 format)
Please use text within Autodesk Revit to create the drawing layout and provide a detailed explanation of the design concept and construction details. The content must include materials used, detailed sections, 3D cross-sections, and localized explanations. Design descriptions can be integrated into floor plans, elevations, sections, and 3D drawings, accompanied by actual photos or renderings for further clarification.
The submission must include the following content:
Full area floor plan (10%)
Zoned floor plan (5%)
Full area 3D view or zoned 3D view (5%)
Section drawings (15%)
Detailed section drawings (5%)
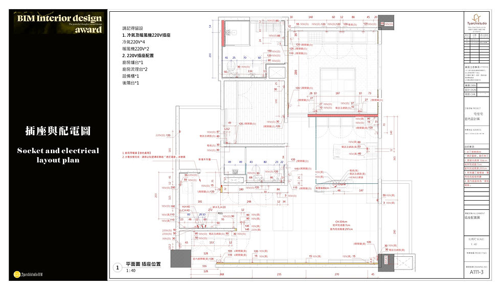
Electrical layout (switches and sockets) and ceiling lighting plan (10%)
Schedules and legends or cost breakdown (10%)
Application details of schedule lists and information fields (15%)
Material descriptions and label applications (15%)
Design Portfolio (10%)
*The application details of schedule lists and information fields should be presented by inserting screenshots directly into the construction drawings.
Part 3: Copyright Statement and Authorization Form
All entries must be original works created by the participant, or works legally authorized by their company or team. Submissions must not infringe upon, plagiarize, or imitate any third party’s intellectual property rights.
All participants are required to sign and upload the Copyright Statement and Authorization Form to confirm the legitimacy of the work’s origin and to ensure that the entry is entirely original or falls within the scope of lawful authorization.













