top of page
Create Your First Project
Start adding your projects to your portfolio. Click on "Manage Projects" to get started
羅啟三 | 三門聯合建築師事務所
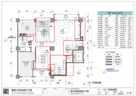
● 專案名稱:余公館新建大樓室內裝修設計工程
● 專案設計年份:2019
● 專案座落地點:新竹市
● 設計面積(坪數):120坪
● 設計樓層:複層
● 設計作品成果影片:
● 設計理念說明:本案為住宅新建大樓工程/毛胚屋,初步設計即以BIM的專案執行方式採用Autodesk Revit 平台作為規劃設計整合的作業模式,提出全案整體3D剖透視「即看即所得」的視覺模擬,作為簡報設計概念創意與實務的經驗整合。 本案重點在於利用Revit建立專用元件族群資料庫與相關資訊欄位 ,輔助所有圖說內容、數量計算成本概估,達到成本價格與數量合一的落實完整性。
● 完工攝影者:崔鴻聖
























bottom of page

